Architekturbüro Schmölzer
Home
Profil
Projekte
Impressum
Sitemap
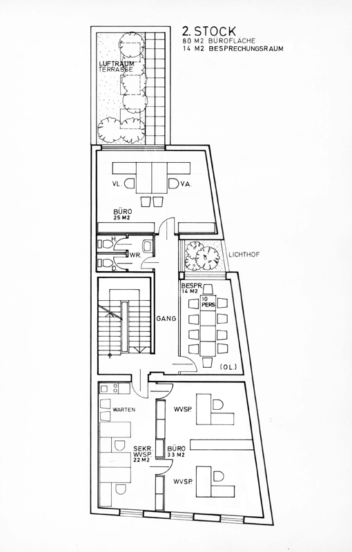
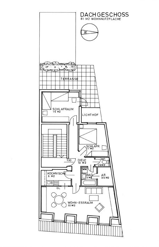
BAUSPARKASSE WÜSTENROT / PLÄNE