HAUS IN HEILIGENKREUZ / PLÄNE

lageplan
Lageplan

grdr_eg
Grundriss Erdgeschoss

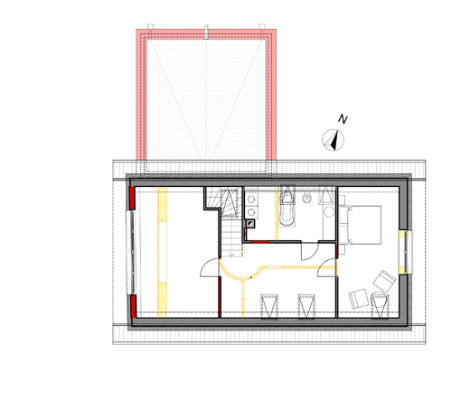
grdr_dg
Grundriss Dachgeschoss

grdr_kg
Grundriss Kellergeschoss

schnitt
Schnitt

entwurf_3_ansicht_suedost
Ansicht Südost