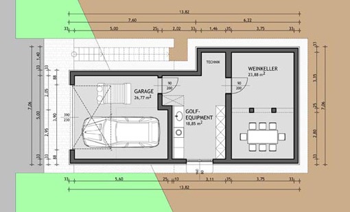
Golfcottage / Pläne

Typ A / Grundriss Untergeschoss

Typ A / Grundriss Untergeschoss