BEZIRKSHAUPTMANNSCHAFT GÜSSING / PLÄNE

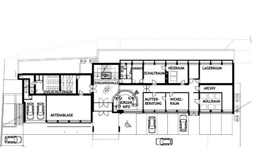
bh_guessing_tg
Grundriss Eingangsgeschoss

bh_guessing_eg
Grundriss Erdgeschoss

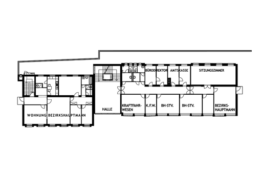
bh_guessing_1og
Grundriss 1. Obergeschoss

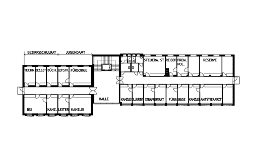
bh_guessing_2og
Grundriss 2. Obergeschoss

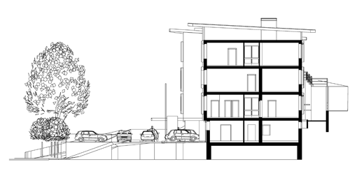
bh_guessing_schnitt
Schnitt

bh_guessing_ansicht_sw
Ansicht Südwest

bh_guessing_ansicht_nw
Ansicht Nordwest